ЛАНДАТ
Запорожье
Моб.:
Показать телефон+380 95 612 3860
Закрыто ⋅ Открывается: вт, 09:00
С компанией нет связи?
Оставить заявку
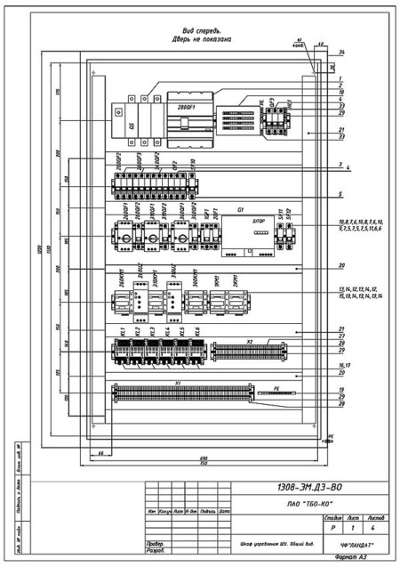
ЛАНДАТ- проекты электроснабжения, силового электрооборудования и освещения (марка ЭС, ЭМ, ЭО) -получение техусловий ТУ, согласование проектов, заключение договоров на электроснабжение. Предлагаем проекты: - ВЛ-0,4/6/10/35кВ - реконструкций электрических подстанций, распределительных устройств НН, ВН, замены трансформаторов - реконструкций и проектирования новых кабельных линий - вводно-распределительных устройств и узлов учета электроэнергии - заземляющих устройств и молниезащиты - распределительных и питающих сетей зданий - магистральных шинопроводов, ошиновок НН и ВН - резервного электроснабжения (дизельных электростанций, UPS) - задания заводам-изготовителям низковольтных комплектных устройств. |
Компании, предоставляющие аналогичные услуги
Обновление: 04.03.2019
Зарегистрировано: 26.02.2014
Идентификатор: 28366
Зарегистрировано: 26.02.2014
Идентификатор: 28366
Отзывы о компании
www.bau.ua/f/landat

Ссылка для мобильных устройств
Центральный офис
Запорожье, ул. Грязнова, 92 оф. 2 Режим работы:
Инженерный центр
Пн — Пт 09:00‒18:00
